123case.it Annunci immobiliari Case vendita Case affitto

LoginArea privatiArea agenzie

HomeRicerca AvanzataAgenzie ImmobiliariDomande frequenti

Ricerca veloce
Dove:
Cosa:
Contratto:

Ricerca per codice ID

Vendi/affitta casa
Inserisci la tua offerta e consulta il database delle richieste

Cerca casa
Inserisci la tua richiesta per renderla visibile a privati e agenzie


Agenzie Immobiliari
Prov.:  









Scheda immobile

ID 23799538 - Appartamento - Vendita
  Venezia - Castello

25/11/25

1.200.000 €
185 mq, - vani
Classe Energetica: D
IPE: 153.80kWh/m2anno

Guarda tutte le foto [43]

Descrizione Immobile
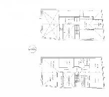
In una delle zone più autentiche di Venezia, a poca distanza dalla basilica dei Santi Giovanni e Paolo, la più grande ed imponente della citta, troviamo questa magnifica proprietà, completamente e sapientemente ristrutturata in tutte le sue parti, che combina tratti contemporanei, con bellissimi particolari in stile veneziano, ubicata tra il secondo e terzo ed ultimo piano, di un palazzo di impianto ottocentesco.
In questa splendida dimora, curata in ogni dettaglio si coglie immediatamente il tratto distintivo dell'eleganza e la raffinatezza delle finiture scelte. Gli elementi tradizionali presenti, come i pregiati pavimenti in terrazzo veneziano, le capriate e le travi originali, e i mattoni a vista di alcune pareti, sono stati magistralmente inseriti in un contesto moderno ed essenziale, dove le linee pulite e le forme geometriche semplici vengono esaltate da una palette di colori neutri, intervallata da tocchi di colore degli arredi, infondendo immediatamente un'armonia visiva, associata ad una sensazione di ordine, equilibrio e benessere.

Il distributivo principale si sviluppa al secondo piano dove è presente una zona living ben articolata comprensiva, di un salotto molto confortevole, che comprende anche una saletta cinema, separata e racchiusa da una bellissima vetrata incorniciata; a seguire un soggiorno con cucina a vista, moderna e ben attrezzata, dai toni del grigio chiaro e dell'antracite, con finiture in acciaio.
Sempre in questo piano, sono disposte due luminose ed ampie camere, che si aprono su un gradevolissimo poggiolo esposto a sud. Entrambe le camere sono servite da due eleganti sale da bagno, dal gusto minimal, inoltre è presente un'organizzata e ben strutturata cabina armadio. Attraverso una comoda scala si raggiunge la zona mansardata dove è stato allestito, da una parte, un vano multifunzionale adibito a camera/studio e dall'altra una zona lavanderia.
La proprietà è dotata di riscaldamento autonomo domotizzato, a pavimento, di aria condizionata e di una fossa settica condominiale. Questa splendida dimora, rappresenta quindi un'ottima soluzione abitativa per chi è alla ricerca di una proprietà nella Venezia più autentica e silenziosa, e anche come ottimo investimento da mettere a reddito.

Ca' Venezia Immobiliare sarà lieta di seguirvi in tutte le fasi della compravendita, gestendo ogni vostra richiesta con la massima attenzione, riservatezza ed impegno. Mettiamo a Vostra disposizione la nostra professionalità e il nostro pool di professionisti veneziani esperti del settore per rispondere ad ogni vostra esigenza.

Ca' Venezia Immobiliare, il piacere di fidarsi. --- annuncio pubblicato con GESTIONALEIMMOBILIARE.it

Caratteristiche dell'Immobile
  • Superficie: 185 mq
  • 2 bagni


Proposto da: CA' VENEZIA IMMOBILIARE
San Polo 2531 - Calle Donà
Venezia (Venezia)
E-mail: Invia messaggio
Tel: +39 041 86 27 429 / Fax:


Nel richiedere informazioni all'agenzia, ricordarsi di citare il codice dell'immobile 123case-23799538


  Copyright © 2002-2019 Volvox Srl unipersonale - P.IVA 01957010992