123case.it Annunci immobiliari Case vendita Case affitto

LoginArea privatiArea agenzie

HomeRicerca AvanzataAgenzie ImmobiliariDomande frequenti

Ricerca veloce
Dove:
Cosa:
Contratto:

Ricerca per codice ID

Vendi/affitta casa
Inserisci la tua offerta e consulta il database delle richieste

Cerca casa
Inserisci la tua richiesta per renderla visibile a privati e agenzie


Agenzie Immobiliari
Prov.:  









Scheda immobile

ID 23807849 - - Vendita
 

30/01/26

135.000 €
120 mq, - vani
Classe Energetica: G
IPE: 168.23kWh/m2anno

Guarda tutte le foto [52]

Descrizione Immobile
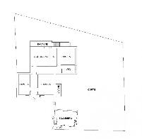
Casa indipendente con ampio terreno privato – Sa Castanza, Olbia

A Sa Castanza, piccola e tranquilla frazione del comune di Olbia, a soli 20 km dal centro città e circa 30 km da San Teodoro, proponiamo in vendita in esclusiva un’interessante soluzione indipendente disposta su un unico livello.

L’immobile gode di ingresso diretto dalla strada e per altri due lati confina con il terreno di proprietà, garantendo così privacy e indipendenza.

La casa si compone di:

soggiorno luminoso,

cucinotto separato,

tre camere da letto,

un bagno.

All’esterno troviamo diversi spazi accessori:

un locale di sgombero (in passato utilizzato come piccolo garage),

una lavanderia,

una cantinetta sottostante.

Completa la proprietà un ampio cortile privato di circa 1.400 mq, ideale per chi desidera creare un grande giardino, un orto o una zona relax all’aperto.

L’immobile necessita di interventi di ristrutturazione e riorganizzazione degli spazi interni, rappresentando però un’ottima opportunità per chi sogna una casa indipendente immersa nella tranquillità della campagna, ma a breve distanza da Olbia e dalle più belle località della costa nord-orientale della Sardegna.

Vuoi cambiare casa?
Ci pensiamo noi!
Contattaci per una valutazione gratuita del tuo immobile e scopri il nostro metodo operativo per vendere e acquistare in modo semplice e sicuro. --- annuncio pubblicato con GESTIONALEIMMOBILIARE.it

Caratteristiche dell'Immobile
  • Superficie: 120 mq
  • 1 bagni


Proposto da: Feel Home di Davide Cocco
Alessandro nanni 31
Olbia (Sassari)
E-mail: Invia messaggio
Tel: 3927530584 / Fax:


Nel richiedere informazioni all'agenzia, ricordarsi di citare il codice dell'immobile 123case-23807849


  Copyright © 2002-2019 Volvox Srl unipersonale - P.IVA 01957010992