123case.it Annunci immobiliari Case vendita Case affitto

LoginArea privatiArea agenzie

HomeRicerca AvanzataAgenzie ImmobiliariDomande frequenti

Ricerca veloce
Dove:
Cosa:
Contratto:

Ricerca per codice ID

Vendi/affitta casa
Inserisci la tua offerta e consulta il database delle richieste

Cerca casa
Inserisci la tua richiesta per renderla visibile a privati e agenzie


Agenzie Immobiliari
Prov.:  









Scheda immobile

ID 23814276 - Appartamento - Vendita
  Padova - Madonna Pellegrina

12/12/25

120.000 €
43 mq, - vani
Classe Energetica: F
IPE: 150.10kWh/m2anno

Descrizione Immobile
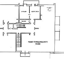
Cerchi un bilocale moderno, funzionale e in una delle zone più richieste di Padova?

Allora questo appartamentino completamente arredato in zona Madonna Pellegrina potrebbe essere esattamente ciò che stavi aspettando.

In circa 40 mq perfettamente distribuiti, troverai un ambiente accogliente e pronto a diventare il tuo nuovo rifugio quotidiano:
• Soggiorno luminoso con angolo cottura e uscita su un piacevole poggiolo con vista sul giardino condominiale, ideale per serate tra amici o piacevoli momenti di relax.
• Camera matrimoniale comoda e silenziosa, pensata per garantire riposo e privacy.
• Bagno cieco a completare l’offerta.

La posizione è uno dei veri punti di forza:
– servizi, supermercati e negozi sotto casa;
– trasporti pubblici vicini e comodi;
– a pochi minuti dalle meraviglie storiche di Padova come Prato della Valle e la Basilica di Sant'Antonio;
– quartiere tranquillo, sicuro e piacevolmente residenziale, ma vivo e ben servito.

Un bilocale così è perfetto per single, giovani coppie, professionisti o soprattutto come investimento a reddito. --- annuncio pubblicato con GESTIONALEIMMOBILIARE.it

Caratteristiche dell'Immobile
  • Superficie: 43 mq
  • 1 bagni


Proposto da: Visentin Immobiliare
Via Cernaia 64
Padova (Padova)
E-mail: Invia messaggio
Tel: 049.8714955 / Fax:


Nel richiedere informazioni all'agenzia, ricordarsi di citare il codice dell'immobile 123case-23814276


  Copyright © 2002-2019 Volvox Srl unipersonale - P.IVA 01957010992