123case.it Annunci immobiliari Case vendita Case affitto

LoginArea privatiArea agenzie

HomeRicerca AvanzataAgenzie ImmobiliariDomande frequenti

Ricerca veloce
Dove:
Cosa:
Contratto:

Ricerca per codice ID

Vendi/affitta casa
Inserisci la tua offerta e consulta il database delle richieste

Cerca casa
Inserisci la tua richiesta per renderla visibile a privati e agenzie


Agenzie Immobiliari
Prov.:  









Scheda immobile

ID 23824872 - Villa - Vendita
  Loreggia (Padova) - Loreggia

03/03/26

249.000 €
250 mq, - vani
Esente indicazione Classe Energetica
IPE: - kWh/m2anno

Descrizione Immobile
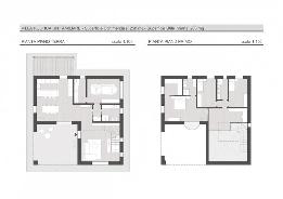
LOREGGIA. Proponiamo villa contemporanea immersa nella natura, completamente al 'GREZZO' su lotto di terreno di circa 1000 mq. Questa splendida proprietà si sviluppa su due piani fuori terra per un totale di ben 250 mq commerciali e vanta un affascinante portico esterno che amplifica lo spazio vivibile all'aperto.

Il progetto attuale prevede la creazione di due appartamenti indipendenti: uno al piano terra ed uno al primo piano, entrambi dotati di ingresso autonomo. Tuttavia, l'immobile può essere facilmente trasformato in una spaziosa villa singola secondo le vostre esigenze abitative personali.

Questa è una straordinaria opportunità per chi ama il contatto diretto con la natura pur desiderando rimanere vicini ai comfort del centro paese. La posizione della casa consente facile accesso a tutte le comodità necessarie quotidianamente, rendendo questo immobile perfetto sia come residenza principale che come rifugio lontano dal caos cittadino.

Classe energetica da attribuirsi poiché trattasi di abitazione in costruzione. Il prezzo richiesto è €. 249.000,00 (Rif. V265).
In ottemperanza alla normativa vigente sulla privacy, ci teniamo a precisare che l'indirizzo riportato nell'annuncio e nella mappa sono puramente indicativi e non corrispondono all'esatta ubicazione dell'immobile.
Contattateci se interessati al sopralluogo di questo immobile o semplicemente per ulteriori informazioni, per valutare altre proposte visitate il nostro sito web. --- annuncio pubblicato con GESTIONALEIMMOBILIARE.it

Caratteristiche dell'Immobile
  • Superficie: 250 mq
  • 2 bagni


Proposto da: Studio Immobiliare Esse Gi
Via Medoaco 4
Padova (Padova)
E-mail: Invia messaggio
Tel: 049 7969480 / Fax:


Nel richiedere informazioni all'agenzia, ricordarsi di citare il codice dell'immobile 123case-23824872


  Copyright © 2002-2019 Volvox Srl unipersonale - P.IVA 01957010992