123case.it Annunci immobiliari Case vendita Case affitto

LoginArea privatiArea agenzie

HomeRicerca AvanzataAgenzie ImmobiliariDomande frequenti

Ricerca veloce
Dove:
Cosa:
Contratto:

Ricerca per codice ID

Vendi/affitta casa
Inserisci la tua offerta e consulta il database delle richieste

Cerca casa
Inserisci la tua richiesta per renderla visibile a privati e agenzie


Agenzie Immobiliari
Prov.:  









Scheda immobile

ID 23828167 - Villa - Vendita
  Bologna - Fiera

27/01/26

499.000 €
224 mq, - vani
Classe Energetica: G
IPE: 276.55kWh/m2anno

Guarda tutte le foto [41]

Descrizione Immobile
Villa Indipendente con Giardino: Il Verde a 10 minuti da Bologna - Via Frabazza, Bologna
Se cerchi l'indipendenza senza rinunciare alla comodità della città, questa villa di 224 mq è la soluzione perfetta. Situata a soli 7 km da Porta San Donato, la proprietà offre il fascino della campagna bolognese in una posizione strategica e servita.
I Punti di Forza
Indipendenza Totale: Libera su quattro lati con ampio giardino privato.
Soluzione Genitori-Figli: Già predisposta con due unità abitative indipendenti (una per piano).
Pronta da Abitare: Finiture di pregio e parzialmente arredata con mobili su misura.
Posizione Strategica: A 5 minuti dal Parco Meraville e a 3 minuti dalla fermata bus (linea 93).
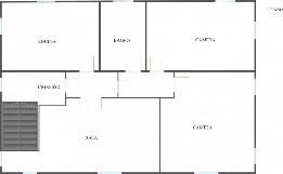
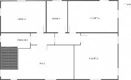
Distribuzione degli Spazi
Piano Primo (Ristrutturato fine anni '80 - Stile Classico)
Caratterizzato da finiture eleganti come il cotto nella zona giorno e il parquet nelle camere.
Ingresso su luminosa sala e cucina abitabile. Zona notte: due ampie camere matrimoniali e bagno. Plus inclusi: Arredi su misura (cucina completa, mobile soggiorno, armadiature e arredo bagno).
Piano Terra (Ristrutturato nel 2020 - Stile Moderno)
Uno spazio versatile, ideale per un secondo nucleo familiare o come zona hobby/ospiti. Ampio locale accessorio di 46 mq. Cucina abitabile, camera da letto e bagno.
Finiture recenti: porta blindata e pavimenti in laminato.
Esterni e Dotazioni
La villa è abbracciata da un giardino privato di circa 574 mq, uno spazio ideale per il relax all'aperto, cene estive e con ampia possibilità di parcheggio interno.
Infissi: Legno con doppio vetro e scuri in legno su entrambi i livelli.
Riscaldamento: Autonomo a metano. Classe Energetica: G.
Perché sceglierla? È la casa ideale per chi desidera ampi spazi generosi, tranquillità e la vicinanza ai servizi urbani, perfetta per una famiglia numerosa che cerca autonomia e privacy sotto lo stesso tetto.
Contattaci per organizzare una visita e scoprire il potenziale di questa proprietà. Richiesta € 499.000 --- annuncio pubblicato con GESTIONALEIMMOBILIARE.it

Caratteristiche dell'Immobile
  • Superficie: 224 mq
  • 2 bagni


Proposto da: MONDORE SRL
Via Castiglione 12/A
Bologna (Bologna)
E-mail: Invia messaggio
Tel: 051269414 / Fax:


Nel richiedere informazioni all'agenzia, ricordarsi di citare il codice dell'immobile 123case-23828167


  Copyright © 2002-2019 Volvox Srl unipersonale - P.IVA 01957010992