123case.it Annunci immobiliari Case vendita Case affitto

LoginArea privatiArea agenzie

HomeRicerca AvanzataAgenzie ImmobiliariDomande frequenti

Ricerca veloce
Dove:
Cosa:
Contratto:

Ricerca per codice ID

Vendi/affitta casa
Inserisci la tua offerta e consulta il database delle richieste

Cerca casa
Inserisci la tua richiesta per renderla visibile a privati e agenzie


Agenzie Immobiliari
Prov.:  









Scheda immobile

ID 23833354 - - Vendita
  Vietri sul Mare (Salerno)

11/05/26

125.000 €
330 mq, - vani
Esente indicazione Classe Energetica
IPE: - kWh/m2anno

Guarda tutte le foto [8]

Descrizione Immobile
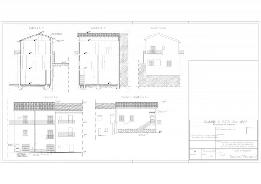
Vendo progetto a costruire come da sezionali allegati. Risanamento conservativo per cui non si pagano gli oneri costruttivi al Comune di Vietri sul MAre. in più si beneficia del 50% dei lavori effettuati per 96.000 ad appartamento in 10 anni.Trattasi di una verticale composta da 2 garage Uno di circa 34 mq e l'altro di circa 32 mq), 2 appartamenti (uno di circa 74 mq e l'altro di circa 86 mq), 1 sottotetto (60 mq calpestabili e più due appezzamenti di terreno di circa 50 mq cadauno. L'immobile è attualmente dove è evidenziato al quadrato giallo

Ref:07316 --- annuncio pubblicato con GESTIONALEIMMOBILIARE.it

Caratteristiche dell'Immobile
  • Superficie: 330 mq


Proposto da: Home Prime di Dall'Aglio Andrea & C. s.a.s.
Via La Spezia 2/A
Parma (Parma)
E-mail: Invia messaggio
Tel: 0521963390 / Fax:


Nel richiedere informazioni all'agenzia, ricordarsi di citare il codice dell'immobile 123case-23833354


  Copyright © 2002-2019 Volvox Srl unipersonale - P.IVA 01957010992